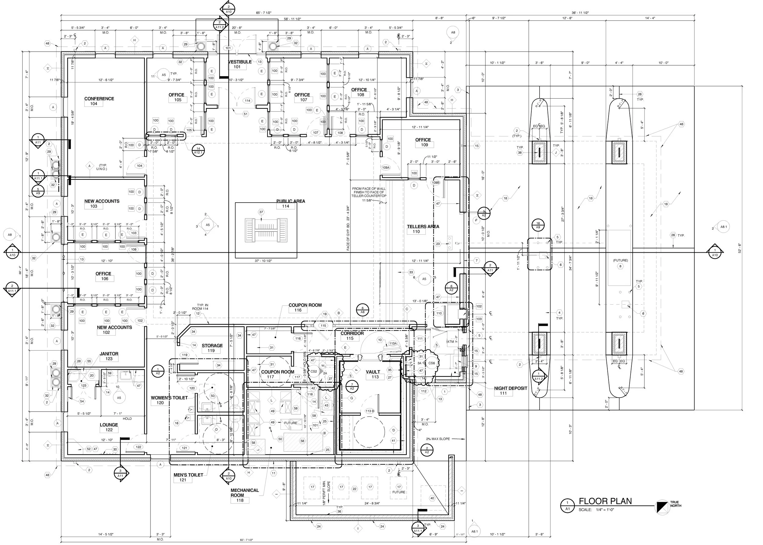
Conversion Concepts Mar 1 Written By Candace Joseph Exploring Untapped Potential in Branch TransformationThese renderings showcase bank conversion concepts serve as a reference for what’s possible when it comes to converting branch space. View fullsize Concept 2 - Existing Floor Plan View fullsize Concept 2 - Site Plan with Starbucks View fullsize Concept 3 - Interior Layout Option 1 View fullsize Concept 3 - Interior Layout Option 2 View fullsize Concept 4 - Existing Floor Plan View fullsize Concept 4 - Floor Plan with Starbucks Candace Joseph
Conversion Concepts Mar 1 Written By Candace Joseph Exploring Untapped Potential in Branch TransformationThese renderings showcase bank conversion concepts serve as a reference for what’s possible when it comes to converting branch space. View fullsize Concept 2 - Existing Floor Plan View fullsize Concept 2 - Site Plan with Starbucks View fullsize Concept 3 - Interior Layout Option 1 View fullsize Concept 3 - Interior Layout Option 2 View fullsize Concept 4 - Existing Floor Plan View fullsize Concept 4 - Floor Plan with Starbucks Candace Joseph